折叠
微信扫码
扫描二维码访问手机站
在线客服
客服
暂无联系客服
用户中心
意见反馈
展开
返回顶部
设为首页
全部产品
童话装修
豪华装修
梦幻装修
简约装修
首页
公司简介
组织架构
工程案例
室内精装修
幕墙工程
园林绿化
员工风采
新闻中心
施工指南
联系我们
首页
>
工程案例
>
室内精装修
>云阳逸合两江平层
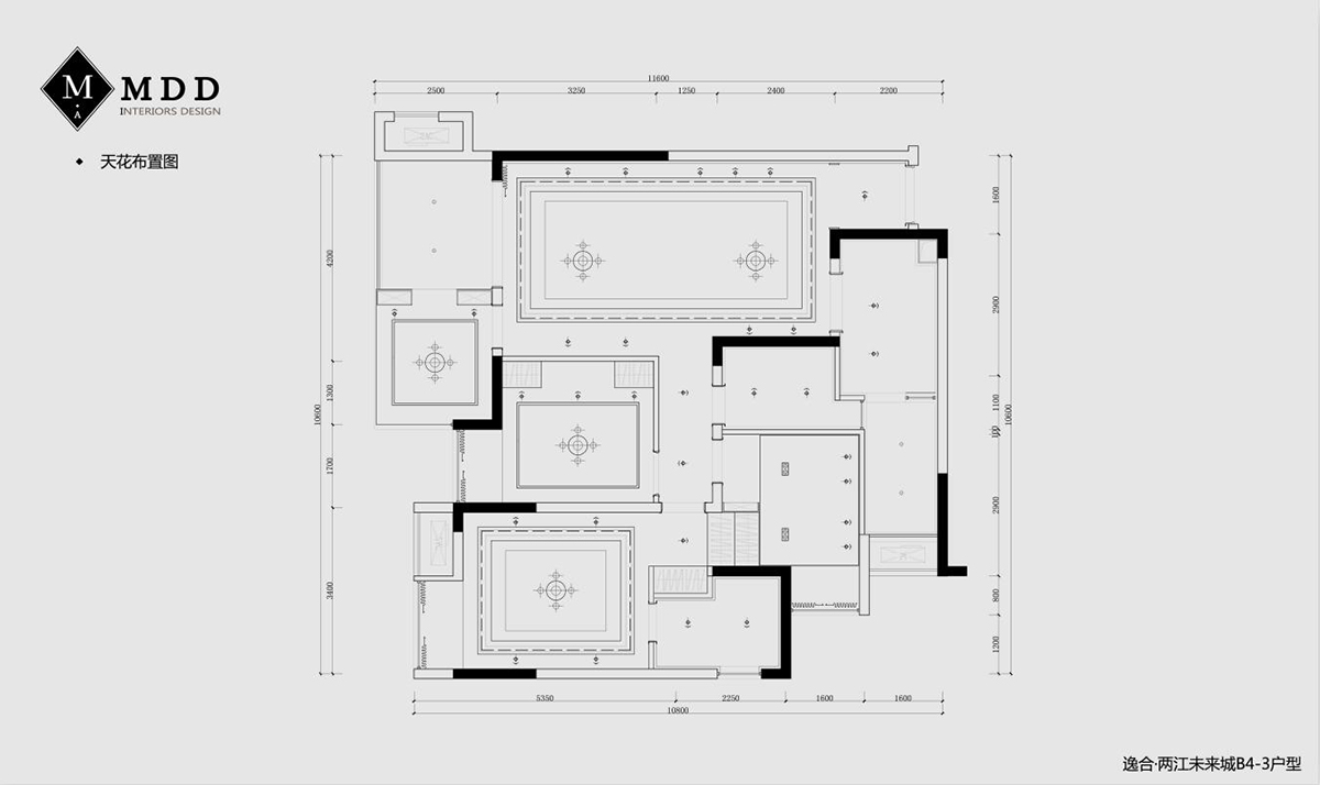
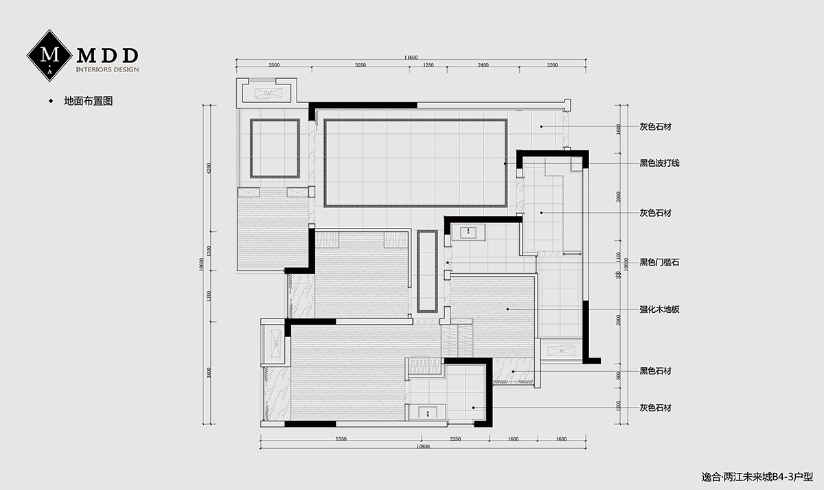
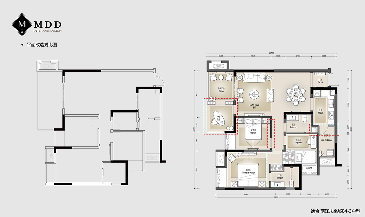
云阳逸合两江平层